W przypadku większych obiektów, takich jak budynki komercyjne, ceny mogą być niższe. Dodatkowo, różne usługi, takie jak szczegółowe pomiary czy tworzenie modeli 3D, mogą znacząco wpłynąć na ostateczny koszt. Warto również pamiętać o podatku VAT, który może być doliczany do ceny. W niektórych sytuacjach inwentaryzacja może być nawet bezpłatna, co warto uwzględnić przy planowaniu budżetu.
Kluczowe wnioski:- Koszt inwentaryzacji budynku zależy od zakresu usług, powierzchni oraz lokalizacji.
- Średnie ceny dla domów jednorodzinnych wynoszą od 6 zł/m² do 25 zł/m², w zależności od szczegółowości inwentaryzacji.
- Dla większych obiektów, takich jak budynki komercyjne, stawki mogą być niższe.
- Dodatkowe usługi, takie jak pomiary instalacji czy modele 3D, zwiększają całkowity koszt inwentaryzacji.
- VAT (23%) może być doliczany do ceny usług inwentaryzacyjnych.
- W niektórych przypadkach inwentaryzacja może być bezpłatna, np. gdy przeprowadzana jest przez urzędnika gminy.
Co wpływa na koszt inwentaryzacji budynku w Polsce?
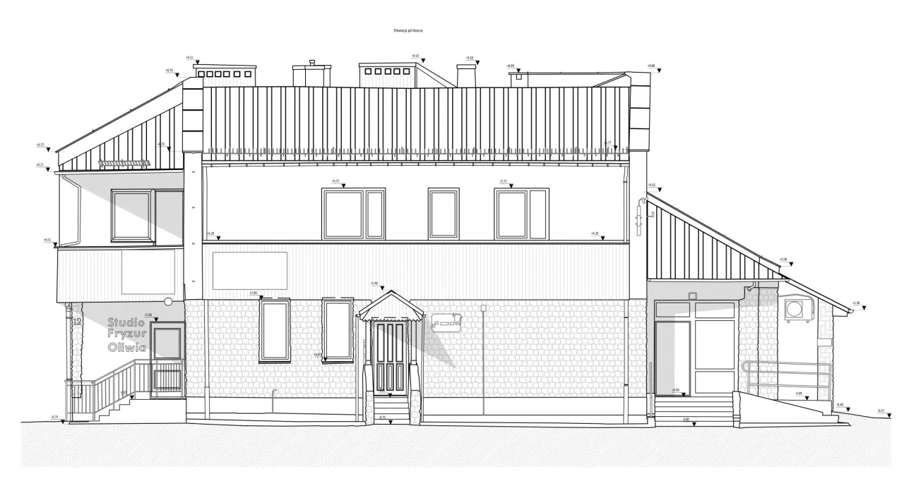
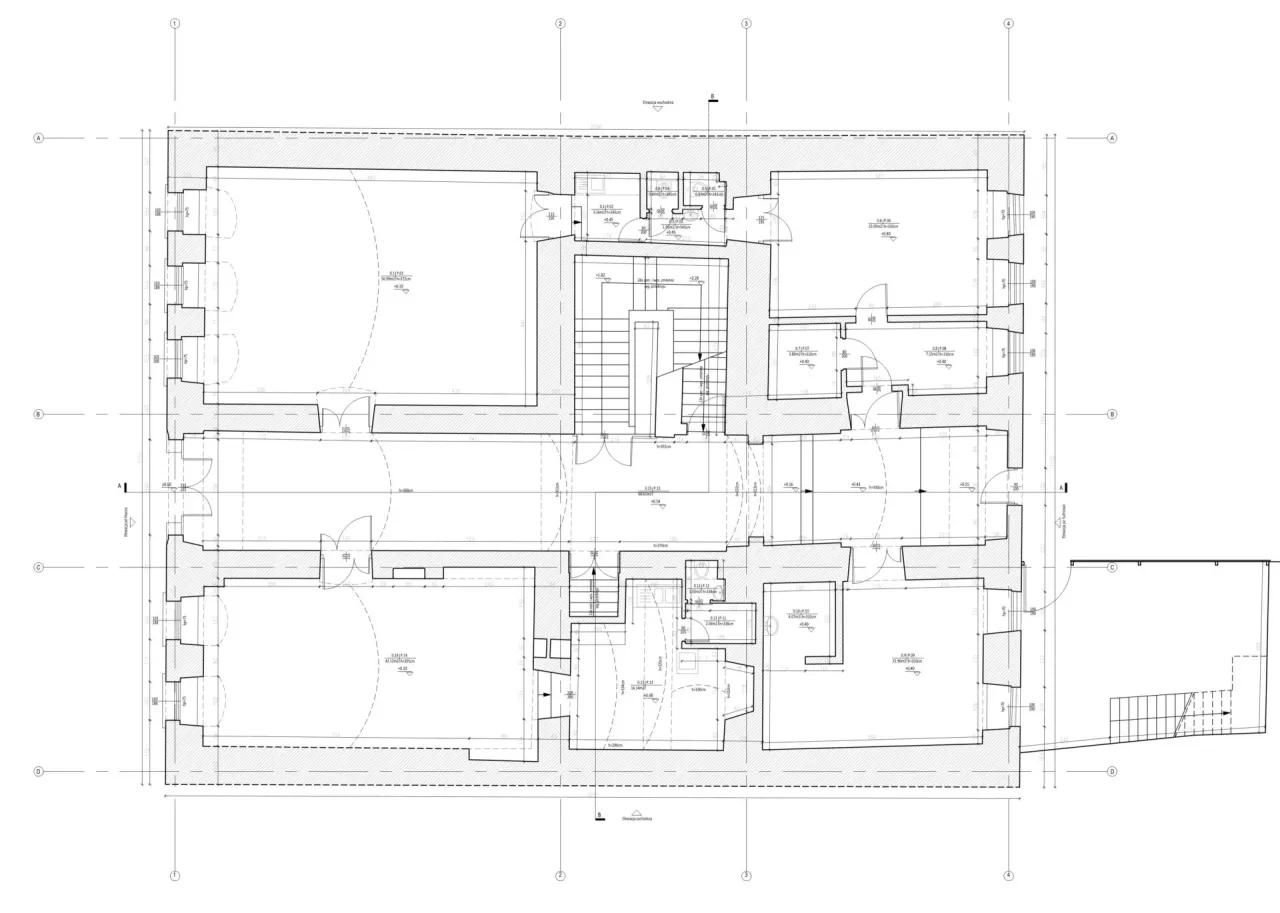
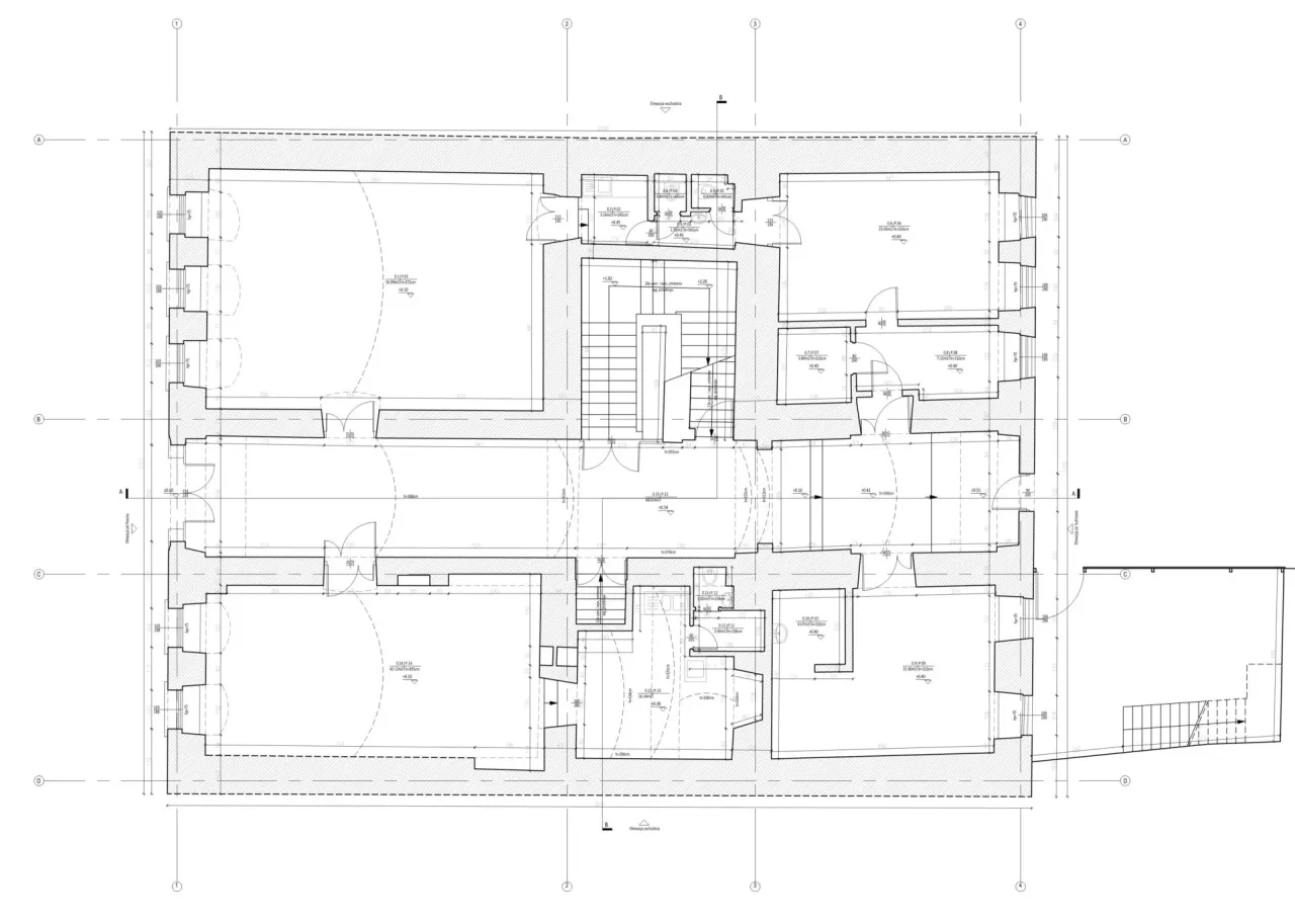
Koszt inwentaryzacji budynku w Polsce jest uzależniony od wielu czynników, które należy wziąć pod uwagę przy planowaniu tego rodzaju usług. Wśród najważniejszych z nich znajduje się zakres usług, powierzchnia nieruchomości oraz jej lokalizacja. Na przykład, inwentaryzacja podstawowa może być znacznie tańsza niż pełna dokumentacja, która wymaga bardziej szczegółowych pomiarów i analizy. Dodatkowo, powierzchnia budynku wpływa na ostateczny koszt, ponieważ większe obiekty mogą korzystać z niższych stawek za metr kwadratowy.Warto również zwrócić uwagę na lokalizację budynku, ponieważ ceny usług mogą się różnić w zależności od regionu. W miastach, gdzie konkurencja jest większa, stawki mogą być niższe niż w mniej zaludnionych obszarach. Zrozumienie tych czynników jest kluczowe, ponieważ może znacząco wpłynąć na budżet przeznaczony na inwentaryzację. Dzięki temu można lepiej oszacować, ile kosztuje inwentaryzacja budynku i jakie opcje są dostępne.Zakres usług a cena inwentaryzacji budynku
Zakres usług, które oferują firmy zajmujące się inwentaryzacją, ma bezpośredni wpływ na koszt całego procesu. Usługi mogą obejmować zarówno podstawową inwentaryzację, która zazwyczaj obejmuje jedynie podstawowe pomiary, jak i pełną inwentaryzację, która dostarcza bardziej szczegółowych danych i dokumentacji. Wybór między tymi opcjami może być kluczowy dla końcowej ceny.
- Podstawowa inwentaryzacja zazwyczaj obejmuje tylko najważniejsze pomiary i jest tańsza.
- Pełna inwentaryzacja wymaga więcej pracy i szczegółowości, co podnosi jej koszt.
- Wybór zakresu usług powinien być dostosowany do potrzeb konkretnego projektu.
Powierzchnia nieruchomości a koszty inwentaryzacji
Rozmiar nieruchomości ma kluczowe znaczenie dla kosztów inwentaryzacji budynku. Zazwyczaj większe obiekty mogą korzystać z niższych stawek za metr kwadratowy, co oznacza, że koszt inwentaryzacji na jednostkę powierzchni maleje wraz ze wzrostem całkowitej powierzchni. Na przykład, dla domów jednorodzinnych o powierzchni powyżej 300 m², stawki mogą wynosić od 6 zł/m² dla podstawowego zakresu inwentaryzacji. Duże obiekty, takie jak kompleksy komercyjne, często mają różne struktury cenowe, co może być korzystne dla inwestorów.
Warto również zauważyć, że wiele firm oferuje zniżki dla dużych projektów, co może dodatkowo obniżyć całkowity koszt inwentaryzacji. Dlatego, planując inwentaryzację, warto dokładnie oszacować powierzchnię i porównać oferty różnych dostawców usług. Poniżej znajduje się tabela, która ilustruje typowe koszty inwentaryzacji w zależności od powierzchni nieruchomości.
| Powierzchnia (m²) | Koszt (zł/m²) |
|---|---|
| Do 100 | 8-10 |
| 100-200 | 6-8 |
| 200-300 | 5-7 |
| Powyżej 300 | 5-6 |
Lokalizacja budynku a różnice w cenach inwentaryzacji
Lokalizacja budynku ma znaczący wpływ na ceny usług inwentaryzacyjnych. W obszarach miejskich, gdzie konkurencja między firmami jest większa, ceny mogą być niższe w porównaniu do obszarów wiejskich. W miastach, takich jak Warszawa czy Kraków, klienci mogą znaleźć szerszą ofertę usług oraz lepsze ceny, podczas gdy w mniejszych miejscowościach stawki mogą być wyższe z powodu ograniczonej liczby dostawców.
Różnice w kosztach mogą wynikać również z kosztów życia w danym regionie oraz specyfiki lokalnych przepisów budowlanych. Dlatego przed podjęciem decyzji o inwentaryzacji, warto porównać oferty w różnych lokalizacjach, aby znaleźć najlepszą opcję. Warto również zwrócić uwagę na dodatkowe koszty, takie jak dojazd specjalistów do mniej dostępnych miejsc.
Jakie są średnie ceny inwentaryzacji budynków w Polsce?
Średnie ceny inwentaryzacji budynków w Polsce różnią się w zależności od rodzaju nieruchomości oraz zakresu usług. Koszt inwentaryzacji dla domów jednorodzinnych i obiektów komercyjnych może się znacznie różnić. Ceny są zazwyczaj wyrażane w złotych za metr kwadratowy (zł/m²), co umożliwia łatwe porównanie ofert różnych firm. Warto zaznaczyć, że przy większych projektach stawki mogą być niższe, co czyni inwentaryzację bardziej opłacalną. Poniżej przedstawiamy tabelę z przykładowymi kosztami inwentaryzacji dla różnych typów budynków.
| Typ budynku | Koszt podstawowy (zł/m²) | Koszt pełny (zł/m²) |
|---|---|---|
| Dom jednorodzinny | 6-8 | 20-25 |
| Mieszkanie | 7-9 | 18-22 |
| Obiekt komercyjny (do 300 m²) | 8-10 | 25-30 |
| Obiekt komercyjny (powyżej 300 m²) | 6-8 | 20-25 |
Koszty inwentaryzacji dla domów jednorodzinnych
Koszt inwentaryzacji dla domów jednorodzinnych jest zazwyczaj niższy niż dla obiektów komercyjnych. Podstawowy zakres inwentaryzacji dla takich nieruchomości wynosi od 6 zł/m² do 8 zł/m², w zależności od specyfiki projektu oraz lokalizacji. Natomiast pełna inwentaryzacja, która obejmuje bardziej szczegółowe pomiary i dokumentację, może kosztować od 20 zł/m² do 25 zł/m². W przypadku domów o większej powierzchni, stawki mogą być bardziej korzystne, co czyni je bardziej opłacalnymi dla właścicieli dużych nieruchomości.
Przykładowo, dla domu jednorodzinnego o powierzchni 120 m², koszt podstawowej inwentaryzacji wynosi około 1200 zł, ale może wzrosnąć w zależności od zakresu prac. Warto również uwzględnić, że minimalna wartość zlecenia często wynosi około 2000 zł, co jest istotne przy kalkulacji budżetu na inwentaryzację.
Ceny inwentaryzacji dla większych obiektów komercyjnych
Ceny inwentaryzacji dla większych obiektów komercyjnych różnią się znacznie od kosztów związanych z domami jednorodzinnymi. W przypadku obiektów komercyjnych, takich jak biurowce, magazyny czy centra handlowe, stawki za inwentaryzację często wynoszą od 5 zł/m² do 20 zł/m², w zależności od zakresu usług oraz specyfiki budynku. Zazwyczaj, dla dużych powierzchni, stawki mogą być korzystniejsze, co oznacza, że im większy obiekt, tym niższa cena za metr kwadratowy. Na przykład, dla obiektów o powierzchni powyżej 300 m², podstawowa inwentaryzacja może kosztować od 6 zł/m², a pełna inwentaryzacja od 20 zł/m².
Warto również zauważyć, że dla obiektów komercyjnych, które wymagają bardziej szczegółowych pomiarów, takich jak instalacje elektryczne czy systemy wentylacyjne, ceny mogą wzrosnąć. Firmy zajmujące się inwentaryzacją często oferują różne pakiety usług, co pozwala na dostosowanie oferty do potrzeb klienta. Dzięki temu właściciele większych nieruchomości mogą lepiej zarządzać swoim budżetem i dostosować zakres inwentaryzacji do specyficznych wymagań ich obiektów.

Dodatkowe usługi wpływające na koszt inwentaryzacji budynku
Dodatkowe usługi, takie jak szczegółowe pomiary, tworzenie modeli 3D czy dokumentacja fotograficzna, mogą znacząco wpłynąć na koszt inwentaryzacji budynku. W przypadku dużych obiektów komercyjnych, takie usługi są często niezbędne do uzyskania pełnej dokumentacji, co z kolei może podnieść całkowity koszt inwentaryzacji. Na przykład, szczegółowe pomiary instalacji mogą zwiększyć cenę o 10-15%, a tworzenie modeli 3D nawet o 20-30% w zależności od skomplikowania projektu.
- Szczegółowe pomiary instalacji elektrycznej: średni koszt to około 500-1500 zł.
- Modele 3D: kosztują zazwyczaj od 1000 zł do 5000 zł, w zależności od złożoności.
- Dokumentacja fotograficzna: dodatkowe 300-800 zł w zależności od zakresu.
Jak szczegółowe pomiary zwiększają koszt inwentaryzacji
Szczegółowe pomiary instalacji, takich jak elektryka, hydraulika czy wentylacja, mają istotny wpływ na koszt inwentaryzacji budynku. W przypadku większych obiektów, precyzyjne pomiary są niezbędne do stworzenia dokładnej dokumentacji, co często podnosi całkowity koszt usługi. Na przykład, szczegółowe pomiary instalacji elektrycznej mogą zwiększyć cenę inwentaryzacji o 10-20%, w zależności od skomplikowania systemu. Im więcej szczegółów wymaga inwentaryzacja, tym wyższe będą koszty związane z jej wykonaniem.
Modele 3D i dokumentacja fotograficzna – ich koszt
Tworzenie modeli 3D oraz dokumentacji fotograficznej to dodatkowe usługi, które również wpływają na koszt inwentaryzacji budynku. Modele 3D dostarczają wizualizacji, które mogą być niezwykle pomocne w późniejszym zarządzaniu nieruchomością. Koszt takiej usługi może wynosić od 1000 zł do 5000 zł, w zależności od złożoności projektu. Dokumentacja fotograficzna, choć często mniej kosztowna, również przyczynia się do zwiększenia całkowitych wydatków związanych z inwentaryzacją, co warto uwzględnić w budżecie.Jak wykorzystać inwentaryzację budynku do efektywnego zarządzania
Inwentaryzacja budynku nie tylko dostarcza danych na temat jego stanu, ale również staje się kluczowym narzędziem w efektywnym zarządzaniu nieruchomościami. Właściciele obiektów, którzy korzystają z dokładnych pomiarów i modeli 3D, mogą lepiej planować przyszłe remonty, modernizacje oraz optymalizację przestrzeni. Dzięki szczegółowej dokumentacji, można łatwiej zidentyfikować obszary wymagające naprawy lub modernizacji, co pozwala na oszczędności w dłuższej perspektywie.
Warto również rozważyć wykorzystanie technologii BIM (Building Information Modeling) w połączeniu z inwentaryzacją. Dzięki BIM, możliwe jest tworzenie dynamicznych modeli, które uwzględniają wszystkie aspekty budynku, w tym instalacje, materiały oraz przyszłe potrzeby. Taka integracja pozwala na lepsze prognozowanie kosztów oraz planowanie działań konserwacyjnych, co przekłada się na długoterminowe zyski i efektywność zarządzania nieruchomościami.
