Inwentaryzacja budynku to kluczowy proces, który pozwala na zebranie ważnych informacji dotyczących obiektu budowlanego. Dzięki niej można ocenić efektywność energetyczną budynku oraz zrozumieć, jak zarządzać kosztami ogrzewania. W dobie rosnących cen energii, właściciele nieruchomości coraz częściej decydują się na przeprowadzenie inwentaryzacji, aby zidentyfikować możliwości oszczędności i poprawić komfort mieszkańców.
W artykule przyjrzymy się bliżej temu procesowi, jego znaczeniu oraz korzyściom, jakie niesie. Zrozumienie, jak inwentaryzacja budynku wpływa na efektywność energetyczną, jest kluczowe dla każdego, kto pragnie wprowadzić zmiany mające na celu obniżenie kosztów ogrzewania i poprawę stanu technicznego swojego obiektu.
Kluczowe informacje:- Inwentaryzacja budynku to dokumentacja techniczna, która zbiera dane o obiekcie budowlanym.
- Głównym celem jest analiza efektywności energetycznej, co pozwala na lepsze zarządzanie kosztami ogrzewania.
- Inwentaryzacja jest dobrowolna, ale może przynieść znaczące oszczędności dla właścicieli nieruchomości.
- Proces ten obejmuje zbieranie danych dotyczących parametrów technicznych budynku oraz źródeł ogrzewania.
- Inwentaryzacja dotyczy głównie budynków z źródłami ciepła o mocy cieplnej mniejszej niż 1 MW.
- Właściciele mogą przeprowadzić inwentaryzację samodzielnie lub zlecić ją specjalistom.
Definicja inwentaryzacji budynku i jej kluczowe znaczenie dla efektywności energetycznej
Inwentaryzacja budynku to proces, który polega na zbieraniu i dokumentowaniu informacji dotyczących obiektu budowlanego. Celem tego działania jest ocena stanu technicznego budynku oraz jego parametrów energetycznych, co ma kluczowe znaczenie dla efektywności energetycznej. Właściwa inwentaryzacja pozwala na identyfikację źródeł utraty ciepła oraz emisji CO2, co jest istotne w kontekście zmian klimatycznych i rosnących kosztów energii.
Ważnym aspektem inwentaryzacji jest jej dobrowolny charakter. Oznacza to, że decyzja o przeprowadzeniu takiej dokumentacji należy do właściciela lub zarządcy nieruchomości. Mimo że inwentaryzacja nie jest obowiązkowa, jej przeprowadzenie może przynieść wiele korzyści, takich jak lepsze zarządzanie kosztami ogrzewania oraz planowanie działań modernizacyjnych, które poprawią wydajność energetyczną budynku.
Jak inwentaryzacja budynku wpływa na zarządzanie kosztami ogrzewania
Inwentaryzacja budynku ma istotny wpływ na zarządzanie kosztami ogrzewania. Dzięki zebranym danym właściciele mają możliwość lepszego zrozumienia, gdzie dochodzi do strat ciepła i jakie są źródła emisji. To z kolei pozwala na wprowadzenie odpowiednich zmian, takich jak poprawa izolacji czy modernizacja systemów grzewczych. Przykładowo, jeśli inwentaryzacja ujawni, że okna są nieszczelne, właściciel może zdecydować się na ich wymianę, co w dłuższej perspektywie prowadzi do znacznych oszczędności.
Proces inwentaryzacji budynku krok po kroku dla właścicieli
Proces inwentaryzacji budynku można podzielić na kilka kluczowych kroków, które pomogą właścicielom w zebraniu niezbędnych informacji. Pierwszym krokiem jest przygotowanie się do inwentaryzacji, co obejmuje zidentyfikowanie wszystkich obszarów, które będą poddane ocenie. Warto również zgromadzić wszystkie dostępne dokumenty dotyczące budynku, takie jak plany architektoniczne czy wcześniejsze analizy efektywności energetycznej. Przygotowanie odpowiednich narzędzi, takich jak formularze do zbierania danych, również jest istotne.
Następnie, w drugim kroku, należy przeprowadzić samą inwentaryzację. To etap, w którym zbierane są dane dotyczące różnych parametrów technicznych budynku. Właściciele mogą samodzielnie wypełnić formularze dostępne w systemie Centralnej Ewidencji Emisyjności Budynków (CEEB) lub skorzystać z pomocy specjalistów. Kluczowe jest, aby dokładnie dokumentować wszystkie istotne informacje, takie jak źródła ciepła, rodzaj izolacji, a także stan techniczny budynku.Ostatnim krokiem jest analiza zebranych danych oraz ich wprowadzenie do systemu. Właściciele powinni ocenić, jakie działania mogą podjąć na podstawie wyników inwentaryzacji. To może obejmować planowanie remontów, modernizacji systemów grzewczych czy poprawy izolacji. Warto także pamiętać, że w przypadku braku danych można użyć formuły „brak danych”, co pozwala na wygenerowanie analizy na podstawie uśrednionych informacji.
Jakie dane są zbierane podczas inwentaryzacji budynku
Podczas inwentaryzacji budynku zbierane są różnorodne dane, które mają kluczowe znaczenie dla oceny efektywności energetycznej. Wśród najważniejszych informacji znajdują się dane dotyczące parametrów technicznych, takie jak rodzaj materiałów budowlanych, ich izolacyjność oraz wiek budynku. Właściciele powinni również dokumentować źródła ogrzewania, w tym typ systemu grzewczego, jego moc oraz rodzaj paliwa, które jest wykorzystywane.Inne istotne dane to informacje na temat okien i drzwi, ich szczelności oraz rodzajów zastosowanych uszczelek. Zbieranie tych danych pozwala na lepsze zrozumienie, gdzie mogą występować straty ciepła. Warto również uwzględnić dane dotyczące wentylacji budynku, ponieważ odpowiednia wentylacja ma kluczowe znaczenie dla komfortu mieszkańców oraz efektywności energetycznej.
- Rodzaj materiałów budowlanych i ich właściwości izolacyjne.
- Typ i moc systemu ogrzewania, a także rodzaj wykorzystywanego paliwa.
- Informacje o oknach, drzwiach oraz ich szczelności.
- Dane dotyczące wentylacji budynku i jej efektywności.
Kto może przeprowadzić inwentaryzację budynku i jak to zrobić
Inwentaryzację budynku mogą przeprowadzać różni profesjonaliści, w tym architekci, inżynierowie budowlani oraz specjaliści ds. efektywności energetycznej. Architekci często zajmują się analizą projektów budowlanych i mogą dostarczyć cennych informacji na temat stanu technicznego obiektu. Inżynierowie budowlani, z kolei, mają odpowiednie wykształcenie i doświadczenie, aby przeprowadzić szczegółowe inspekcje budynków oraz ocenić ich parametry techniczne.Specjaliści ds. efektywności energetycznej to profesjonaliści, którzy koncentrują się na poprawie wydajności energetycznej budynków. Mogą oni przeprowadzać audyty energetyczne, które są integralną częścią inwentaryzacji budynku. Warto również wspomnieć, że inwentaryzację można przeprowadzić samodzielnie, korzystając z formularzy dostępnych w systemie Centralnej Ewidencji Emisyjności Budynków (CEEB), jednak dla dokładności i rzetelności danych zaleca się współpracę z wykwalifikowanymi specjalistami.
Różnice między inwentaryzacją techniczną a inwentaryzacją budynku
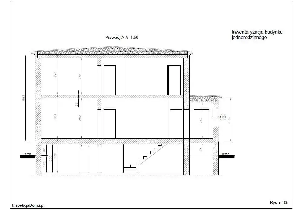
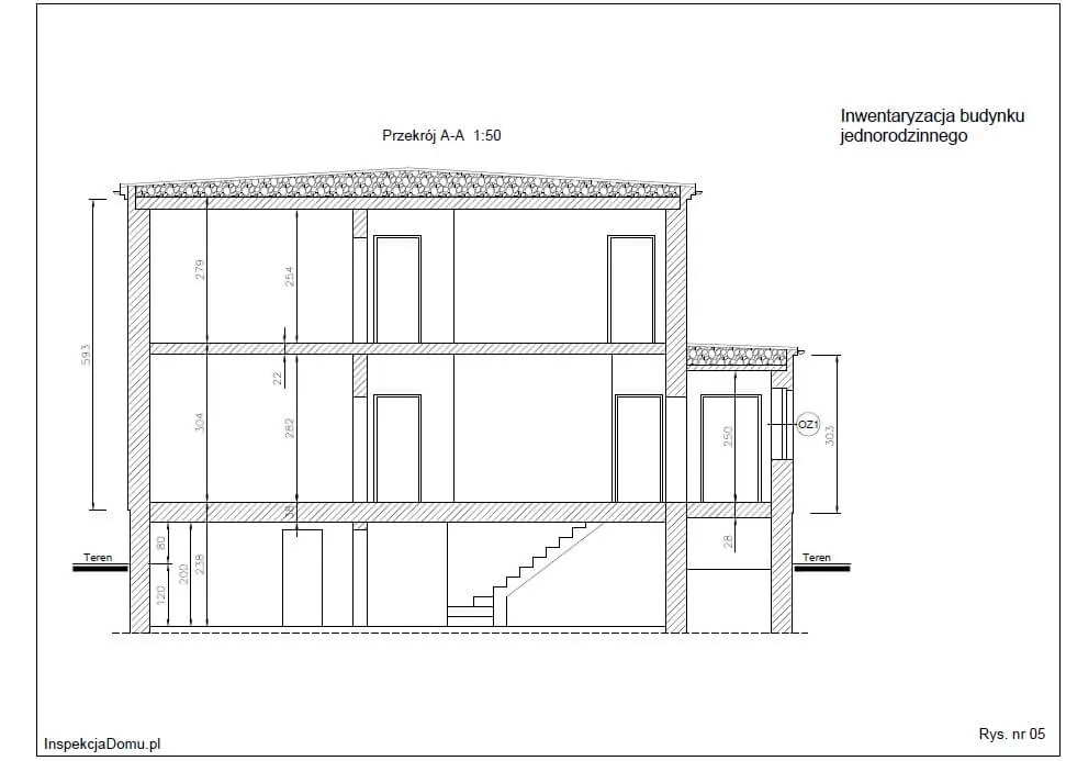
Inwentaryzacja techniczna i inwentaryzacja budynku różnią się przede wszystkim swoim zakresem i celami. Inwentaryzacja budynku koncentruje się na zbieraniu danych dotyczących efektywności energetycznej obiektu, takich jak źródła ciepła i parametry techniczne, co ma na celu zrozumienie, jak poprawić wydajność energetyczną. Z kolei inwentaryzacja techniczna skupia się na dokładnym przedstawieniu stanu faktycznego budynku, w tym jego wymiarów, materiałów budowlanych oraz rozwiązań architektonicznych. Jest często wymagana przy remontach, przebudowach lub sprzedaży nieruchomości.
Metodologia obu typów inwentaryzacji również się różni. Inwentaryzacja budynku może być przeprowadzona samodzielnie przez właściciela lub zlecona specjalistom, podczas gdy inwentaryzacja techniczna zazwyczaj wymaga zaangażowania wykwalifikowanych inżynierów lub architektów, którzy posiadają odpowiednie uprawnienia. W rezultacie, wyniki inwentaryzacji technicznej są bardziej szczegółowe i precyzyjne, co jest kluczowe w kontekście planowania większych inwestycji budowlanych.

Korzyści z inwentaryzacji budynku dla przyszłych remontów i modernizacji
Przeprowadzenie inwentaryzacji budynku przynosi wiele korzyści dla właścicieli, zwłaszcza w kontekście planowania przyszłych remontów i modernizacji. Dzięki zebranym danym, właściciele mogą dokładnie ocenić stan techniczny obiektu oraz zidentyfikować miejsca, które wymagają poprawy. To pozwala na lepsze planowanie działań, takich jak wymiana okien, poprawa izolacji czy modernizacja systemów grzewczych, co w dłuższej perspektywie prowadzi do oszczędności w kosztach eksploatacji.
Inwentaryzacja budynku umożliwia także właścicielom podejmowanie świadomych decyzji dotyczących inwestycji w termomodernizację. Analiza efektywności energetycznej pozwala na opracowanie strategii, które mogą znacząco zwiększyć komfort mieszkańców oraz obniżyć rachunki za energię. Co więcej, dobrze przeprowadzona inwentaryzacja może również zwiększyć wartość nieruchomości, co jest istotne w przypadku planów sprzedaży w przyszłości.
Jak inwentaryzacja budynku wspiera decyzje dotyczące termomodernizacji
Dane z inwentaryzacji budynku odgrywają kluczową rolę w podejmowaniu decyzji dotyczących termomodernizacji. Przykładowo, informacje o źródłach ciepła oraz ich efektywności mogą wskazać, które systemy wymagają modernizacji lub wymiany. Jeśli inwentaryzacja ujawni, że obecny system grzewczy jest przestarzały i ma niską wydajność, właściciel może zdecydować się na instalację nowoczesnego kotła kondensacyjnego, który pozwoli na znaczne oszczędności w kosztach ogrzewania.
Inwentaryzacja dostarcza także danych dotyczących izolacji budynku, co jest istotne przy planowaniu działań termomodernizacyjnych. Na przykład, jeśli analiza wykazuje, że ściany i dach są źródłem dużych strat ciepła, można podjąć decyzję o ich dociepleniu. Tego typu działania nie tylko poprawiają komfort mieszkańców, ale również zwiększają wartość nieruchomości na rynku. W rezultacie, dobrze przeprowadzona inwentaryzacja staje się fundamentem efektywnej strategii termomodernizacji.
Jak wykorzystać inwentaryzację budynku do pozyskania dotacji na modernizację
Właściciele nieruchomości mogą wykorzystać wyniki inwentaryzacji budynku jako solidną podstawę do ubiegania się o dotacje na termomodernizację. Wiele programów rządowych i lokalnych oferuje finansowanie działań mających na celu poprawę efektywności energetycznej budynków, a szczegółowe dane z inwentaryzacji mogą pomóc w spełnieniu wymogów aplikacyjnych. Na przykład, dokumentacja dotycząca źródeł ciepła oraz strat ciepła może być kluczowym elementem w procesie oceny, który pozwala na uzyskanie wsparcia finansowego.
Co więcej, zebrane informacje mogą być wykorzystane do stworzenia planu działania, który nie tylko uwzględnia modernizację systemów grzewczych, ale także poprawę izolacji budynku. Zastosowanie nowoczesnych technologii, takich jak inteligentne systemy zarządzania energią, może dodatkowo zwiększyć efektywność energetyczną i przyczynić się do obniżenia kosztów eksploatacyjnych. W ten sposób inwentaryzacja budynku staje się nie tylko narzędziem do oceny stanu technicznego, ale również strategicznym elementem w pozyskiwaniu funduszy na przyszłe inwestycje.